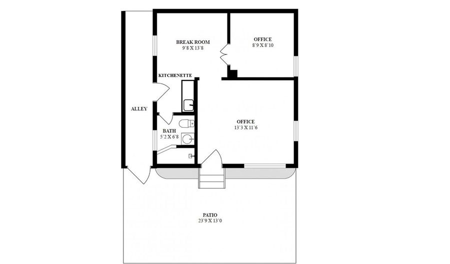
Renovated commercial detached building in prime Old Town location! Ideal for salon, attorney, therapist, yoga, retail, etc. Zoned CL. Renovated 2018 with new HVAC, flooring, paint. kitchenette, full bath, etc. Perfect location, walk to shops and restaurants in Old Town, 3 blocks to the waterfront. Available for lease starting Jan 1. Tenant pays water/electricity/internet.
| Date | Event | Price | $/Sqft | Source |
|---|---|---|---|---|
| Listed For Rent | $2,250 | $∞ | Alex/OldTown HistoricDistrict |
Elementary School Lyles - Crouch Elementary | 0.2 miles away | KG - 05 | |
Elementary School Jefferson - Houston Elementary | 0.9 miles away | PK - 05 | |
Middle School Geroge Washington 2 Middle | 1.4 miles away | 00 - 00 |





